![]() | male one end in tube OD size femal expansion two ends Male run for direct assembly into mechanical ports or into female BRAZETYTE® expansions.Female ends to accept tube OD or male ends of BRAZETYTE® fittings . When used to join different OD sizes, eith the 5MF reducer or the 10MF expander can be employed | ![]() |
| CATALOG # | TUBE O.D. | TUBE WALL | NOMINAL | NOMINAL |
| 15MF-5 | 5/16 | .025 | 1-1/8 | 17/32 |
| 15MF-6 | 3/8 | .028 | 1-1/4 | 17/32 |
| 15MF-8 | 1/2 | .032 | 1-5/8 | 13/16 |
| 15MF-10 | 5/8 | .035 | 2 | 1 |
| 15MF-12 | 3/4 | .042 | 2-3/8 | 1-3/16 |
| 15MF-16 | 1 | .049 | 3-1/4 | 1-5/8 |
| 15MF-20 | 1-1/4 | .049 | 3-5/8 | 1-13/16 |
| 15MF-24 | 1-1/2 | .049 | 4-1/8 | 2-1/16 |
![]() | female expansions two ends, male one end in tube OD size Male for direct assembly into machined ports or into female BRAZETYTE® expansions. Female ends to accept tube OD or male ends of BRAZETYTE® fittings. When used to join different OD sizes, either the 5MF reducer or the 10MF expander can be employed. | ![]() |
| TUBE O.D. | TUBE WALL | NOMINAL | NOMINAL | |
| 20MF-5 | 5/16 | .025 | 1-1/16 | 19/32 |
| 20MF-6 | 3/8 | .028 | 1-1/4 | 9/16 |
| 20MF-8 | 1/2 | .032 | 1-5/8 | 13/16 |
| 20MF-10 | 5/8 | .035 | 2 | 1 |
| 20MF-12 | 3/4 | .042 | 2-3/8 | 1-3/16 |
| 20MF-16 | 1 | .049 | 3-1/4 | 1-5/8 |
| 20MF-20 | 1-1/4 | .049 | 3-5/8 | 1-13/16 |
| 20MF-24 | 1-1/2 | .049 | 4-1/8 | 2-1/16 |
![]() | male three ends For direct assembly into machined ports and flanges or into female BRAZETYTE® expansions. Can be used as a but weld fitting. | ![]() |
NO | O.D. | WALL | NOMINAL | NOMINAL |
| 30MM-5 | 5/16 | .025 | 1-3/16 | 19/32 |
| 30MM-6 | 3/8 | .028 | 1-1/4 | 9/16 |
| 30MM-8 | 1/2 | .032 | 1-5/8 | 13/16 |
| 30MM-10 | 5/8 | .035 | 2 | 1 |
| 30MM-12 | 3/4 | .042 | 2-3/8 | 1-3/16 |
| 30MM-16 | 1 | .049 | 3-1/4 | 1-5/8 |
| 30MM-20 | 1-1/4 | .049 | 3-5/8 | 1-13/16 |
| 30MM-24 | 1-1/2 | .049 | 4-1/8 | 2-1/16 |
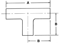
![]() | female expansions three ends All ends accept either tube OD or male end of BRAZETYTE® fitting. When used to join different OD sizes, either the 5MF reducer or the 10 MF expander can be employed. | ![]() |
# | O.D. | WALL | NOMINAL | NOMINAL |
| 30FF-4 | 1/4 | .025 | 1-3/16 | 19/32 |
| 30FF-5 | 5/16 | .025 | 1-1/4 | 9/16 |
| 30FF-6 | 3/8 | .028 | 1-3/8 | 11/16 |
| 30FF-8 | 1/2 | .032 | 1-5/8 | 13/16 |
| 30FF-10 | 5/8 | .035 | 2 | 1 |
| 30FF-12 | 3/4 | .042 | 2-3/8 | 1-3/16 |
| 30FF-16 | 1 | .049 | 3-1/4 | 1-5/8 |
| 30FF-20 | 1-1/4 | .049 | 3-5/8 | 1-13/16 |
| 30FF-24 | 1-1/2 | .049 | 4-1/8 | 2-1/16 |